KIPROU 100 – ΠΕΡΙΣΤΈΡΙ

Γενικές πληροφορίες

Το έργο βρίσκεται στο νοτιοδυτικό τμήμα της Αθήνας, κοντά στην περιοχή Μπουρνάζι και το σταθμό του μετρό, σε μια ήσυχη και αραιοκατοικημένη περιοχή.

Το Περιστέρι, ο τέταρτος μεγαλύτερος δήμος της χώρας, συνεχίζει να εξελίσσεται με τα χρόνια, καλύπτοντας όλες τις ανάγκες, είτε τις επισκέπτεται τις καθημερινές είτε τα Σαββατοκύριακα, όσον αφορά την εστίαση, τα ψώνια, τον αθλητισμό, τις πολιτιστικές εκδηλώσεις και, πάνω απ’ όλα, την ενασχόληση με ενδιαφέροντες ανθρώπους σε ένα ζωντανό σκηνικό.

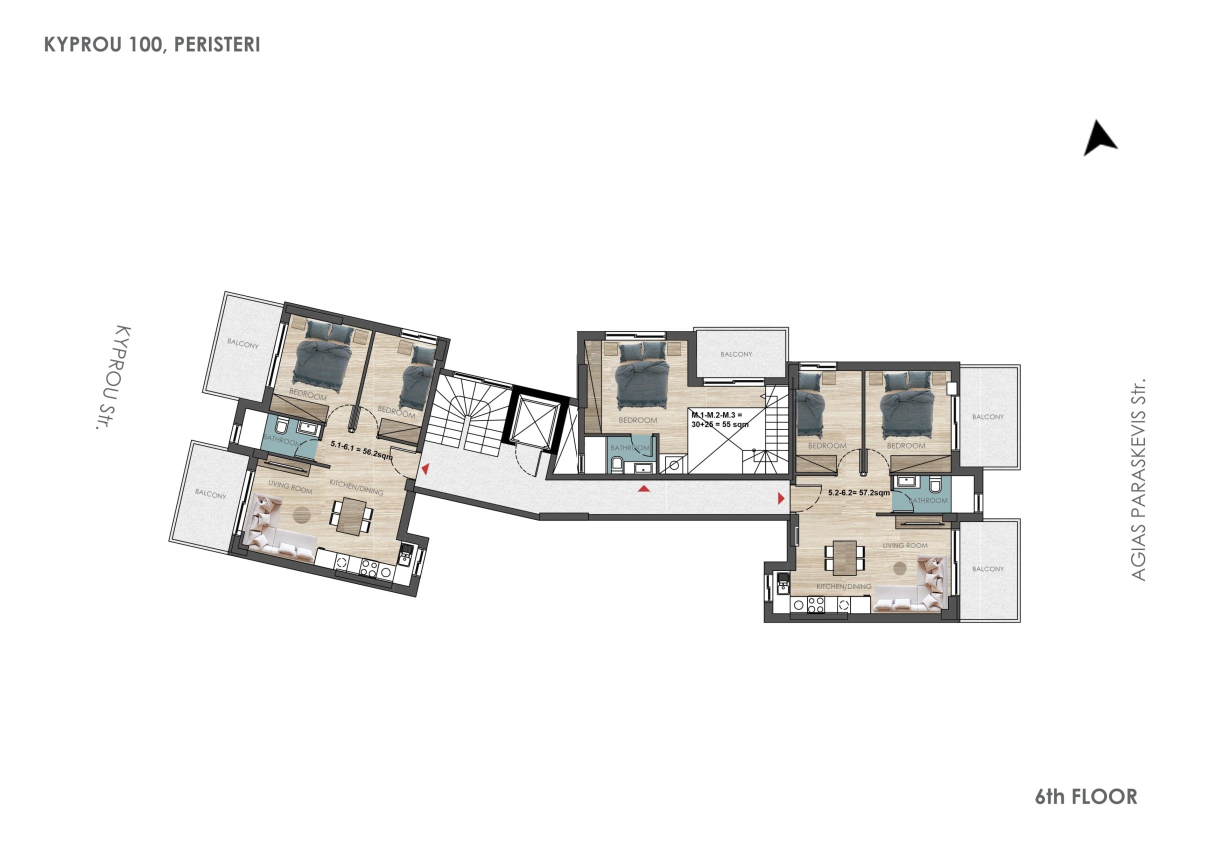
Το κτίριο εκτείνεται σε τέσσερα επίπεδα προσφέροντας δώδεκα διαμερίσματα 2 υπνοδωματίων και τρεις μεζονέτες 1 υπνοδωματίου.

Κύρια σημεία

  • Ενεργειακή απόδοση : Α
  • Θέρμανση : Αντλίες θερμότητας
  • Είδη υγιεινής : Germanic
  • Κουζίνες : Ιταλικά
  • Πρίζες φόρτισης : Ιδανικές για ηλεκτρικά αυτοκίνητα

Διαμερίσματα

Πάρκινγκ

Ναι

Αποθήκη

Ναι

Διαμ. m2

Μπαλκόνι

Όροφοι

6

Εκδήλωση ενδιαφέροντος για KIPROU 100 – ΠΕΡΙΣΤΈΡΙ .

Συνεχίζοντας, συναινείτε να λαμβάνετε κλήσεις και μηνύματα στον αριθμό που δηλώσατε, συμπεριλαμβανομένων των διαφημιστικών μηνυμάτων και του ηλεκτρονικού ταχυδρομείου, από το zafido.gr και σχετικά με την έρευνά σας και άλλα θέματα που σχετίζονται με ακίνητα, αλλά όχι ως προϋπόθεση αγοράς.

ΣΧΕΔΙΑ ΟΡΟΦΩΝ

Χρήσιμες πληροφορίες

Καταστήματα

Αεροδρόμιο

Νοσοκομείο

Σχολείο

Δημόσιες μεταφορές

Μετρό

Παραλία

Πανεπιστήμιο

Μπορεί να σας ενδιαφέρουν επίσης