Ermou 29

General information

The project is located in the southern part of Athens close to the center of Glyfada in a quiet and sparsely populated area. The building extends into five levels offering three (one) bedroom maisonettes, two (one) bedroom apartments, two (two) bedroom apartments and two (three) bedroom apartments with a communal swimming pool based on the ground floor. Elongated balconies are located to the east and west side with large openings for easy access to both areas, inside and out. Its distinct and unique architectural design promotes the impression of harmony and balance due to its characteristic composition of cleverly positioned horizontal and vertical structural overlays creating sense of serenity and calmness. The sculpted segments projecting from the sides of the building combined with the glass veneers appear to be detached from the structure.

Highlights

  • Energy Efficiency A+
  • Individual Heating – Natural Gas
  • Entrance Gate
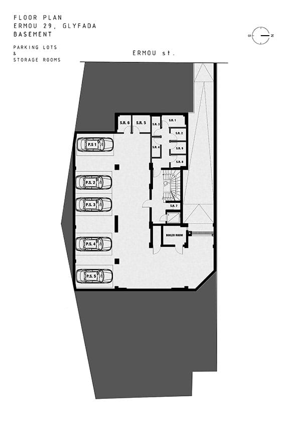
  • Parking Area
  • Storage room
  • Common Swimming Pool
  • Garden
  • Glyfada Center: 7 minutes walk

Units

Unit m2

Balconies sqm

Parking

Storage

Floors

5

I' m interested in Ermou 29 property

By proceeding, you consent to receive calls and texts at the number you provided, including marketing and email, from zafido.gr and about your inquiry and other home-related matters, but not as a condition of any purchase. 

FLOOR PLANS

VIRTUAL TOUR

Useful information

Shops

Public Transport

Metro

Beach

Hospital

University

Airport

School

You might also want to check these available properties.